物件

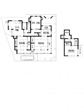
zumen

2016.11.26

お問い合わせ