賃貸
光と階段をのぼり。
#RENT #シングル #ファミリー #事務所 #住居
- 賃 料
- 153,000円
- 管理費
- 4,000円
- 面 積
- 60.62㎡
- 所在地
- 左京区田中関田町
- 交 通
- 京阪本線「出町柳」徒歩3分
- 敷 金
- 賃料の1ヶ月分
- 礼 金
- 賃料の1.5ヶ月分
桜終わりの出町柳は、良い陽気のもと、
市民の憩いの場として賑わっていた。
木陰で読書する人、
飛び石を渡る親子連れ、
自転車で散策する観光客と、
川にはサギや鵜。
自然に、様々なものが行き交う様子こそ、
この場所の魅力だと思っている。
そんな河川敷から5分ほど歩くと、
今回の物件にたどり着いた。
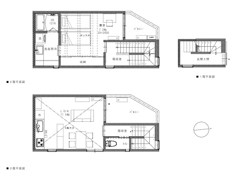
軒と庇の内側が木目調に仕上げられているので、
見上げた印象が柔らかい。
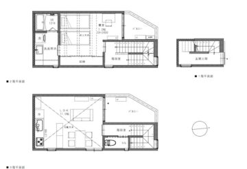
お部屋は、自然光が優しく注ぐメゾネット。
階段にも光が通り、
それを白い壁がふわりと拡散している。
光と共に階段をのぼり、3階へ。
風通しの良さも考えられた窓配置と、
天井勾配もあって開放感がある。
自然光と風が通る部屋から。
京都を囲む山々の稜線を、
東には比叡山や大文字山を望む。

- 物件名
- De machi maison
- タイプ
- N2号室(1LDK)
- 面 積
- 60.62㎡
- 家 賃
- 153,000円
- 共益費
- 4,000円
- 礼 金
- 賃料の1.5ヶ月分
- 敷 金
- 賃料の1ヶ月分
- 保証金
- -
- 更新料
- 11,000円
- 駐車場
- 無し
- 所在地
- 左京区田中関田町
- 交 通
- 京阪本線「出町柳」徒歩3分
- 構 造
- 木造3階建
- 完 成
- 2024年9月
- 入居時期
- 即入居可
- 取引態様
- 仲介 ※成約の際、仲介手数料として成約賃料の0.55ヶ月分(税込)が必要になります。
- 備 考
- 普通借家契約2年
更新事務手数料:25,300円
火災保険:加入必須【AIG損害保険 料金:27,000円 期間:2年】
くらしーど24:16,500円
退去時清掃費(敷引):66,000円
保証会社(必須)全保連学生:初回のみ2万円 社会人:毎年プラン:賃料合計50% 更新1.2万円/年、初回のみプラン:賃料合計80% 口座振替料:440円/月
水道代実費
ネット使用料不要(J:COM 1G)
宅配ボックス、TVインターフォン、BS、システムキッチン(グリル付)、IH2口+ラジェントヒーター1口、追い焚き風呂、浴室乾燥、浴室暖房
事務所相談可
- 情報更新日
- 2026年5月18日
この物件へお問い合わせ