トンガリプロジェクトvol.20 子かぶレジデンス
東山山麓、山科にある
「清水焼団地」という町をご存知でしょうか。
昭和40年代の後半、清水焼の職人さんたちが
五条坂界隈から移住し形成された工業地区。
今でも、窯元や陶磁器店、
清水焼関連の専門店などがたくさんあります。
そんな職人の町・清水焼団地にある
レトロマンションの1室が絶賛改装中です。
改装後はキッチン・リビングの視線が
窓向きになるので
東山が一望できてとっても気持ち良いです。
(写真は曇り空ですが眺望は◎)

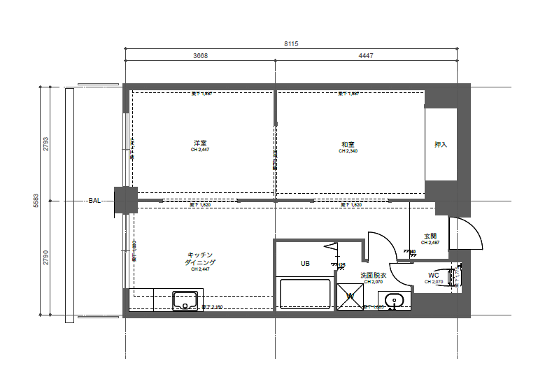
改装前(2DK→1LDKに改装/キッチンの向き変わります)
さて、先日、
工事中のところちょっとお邪魔し
こだわりを色々お聞きしてきました。
ポイント① 和室→土間
玄関入って右手の和室は土間になります。
工作・作業なんかもしやすいです◎
自転車が趣味の方にもおすすめです!
ポイント②こだわりのあずき色
マンション外壁の淡い小豆色に合わせて、
壁、天井、タイル部分、コンクリ部分etc…
全て同じ色に塗装。
色味が暖かくて、柔らな雰囲気です。
ポイント③框にそっと忍ばせてあります
清水焼の町にちなみ、
リビングの框にタイルを装飾予定。
廃材だったものを焼き直したそうです。
ポイント④キッチン~廊下のお役立ち壁
工夫次第で自由に楽しめるエキスパンドメタル設置予定。
実用的に活用するも良し、インテリアなどに工夫するも良し。
エキスパンドメタルの奥に
カラフルな電気線が見える仕上がりになるらしく、
それも可愛くなりそうで楽しみです!
果たしてどんなお部屋になるのでしょうか。
改装完成が楽しみです♪
もうすぐ条件が決定しますので
準備でき次第、募集開始いたします!
もう少々お待ちくださいませ。











